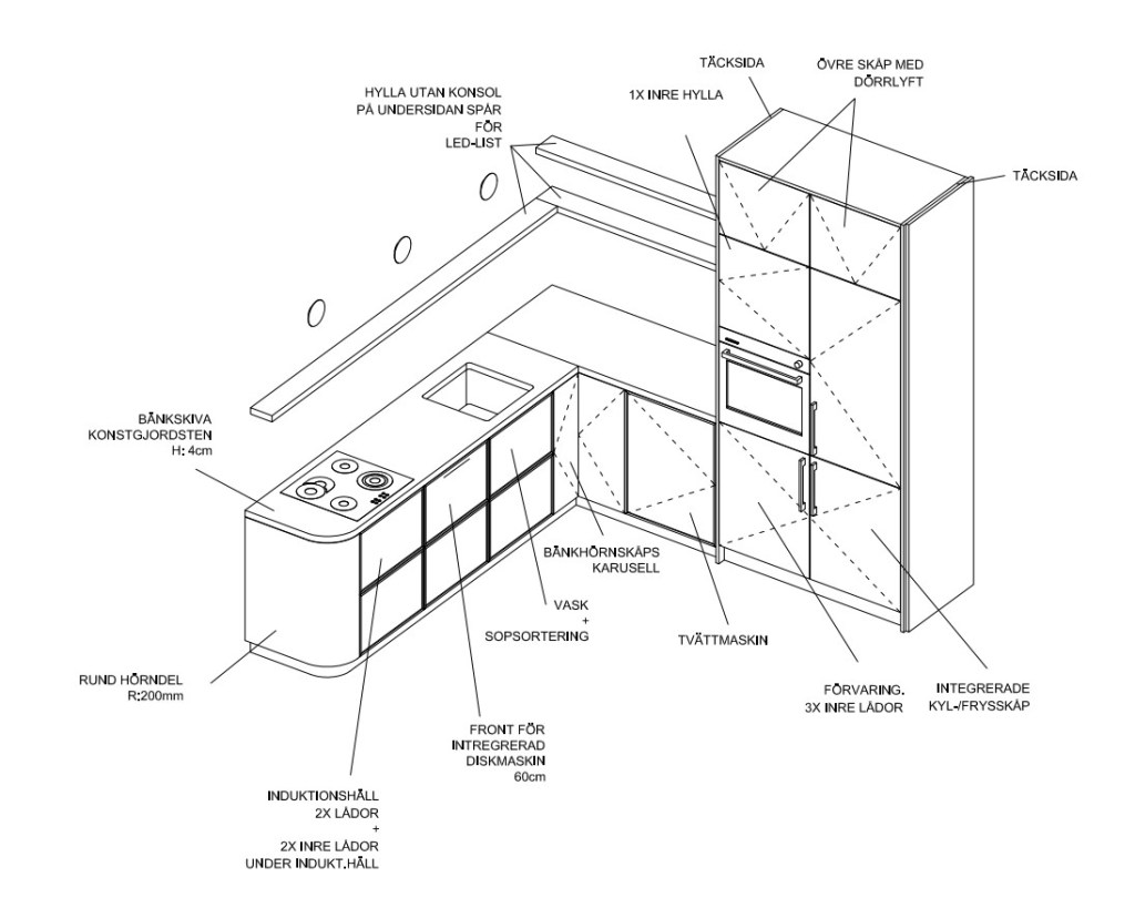
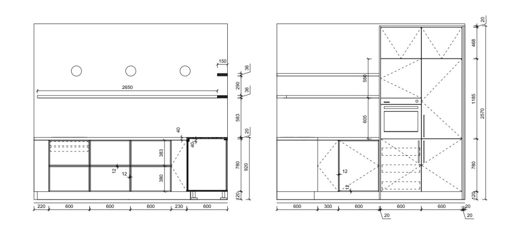
Köksrenovering i moderna jordnära toner och naturliga material. Köket har en minimalistisk karaktär med rena linjer, öppna hyllor och rundade hörn. Tack vare den smarta lösningen finns det, trots de mindre måtten, tillräckligt med förvaringsutrymme för köksredskap, mat och gott om arbetsyta.





