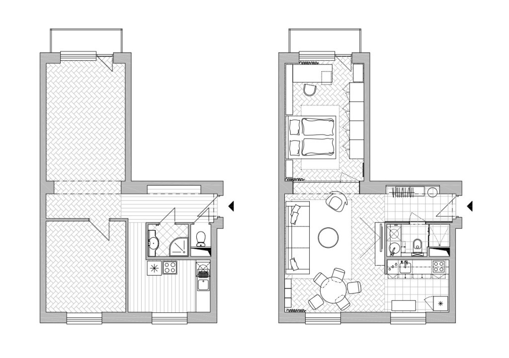
Med denna rekonstruktion har lägenheten fått en minimalistisk stil och ljusa toner. Genom att riva mellanväggarna fick vi ett stort öppet utrymme för vardagsrum och kök. Det ursprungliga vardagsrummet blev ett stort sovrum orienterat mot den lugna innergården där även en arbetshörna och förvaringsutrymmen har sin plats.
Skiljeväggen är gjord av glasbetong med dörr utan karm. Genom den ändrade planlösningen kunde vi också skapa ett rymligare badrum.

Lägenheten är inredd i ljusa toner med vitt och grått i kombination med träparkett och terrazzoplattor. Platsbyggda, egendesignade möbler kompletteras med möbler från Ikea.
Länken till utförandet hittar du här: https://daliark.se/2025/09/09/minimalistisk-lagenhetsrenovering-oppen-planlosning-och-ljusa-toner-utforandet/








