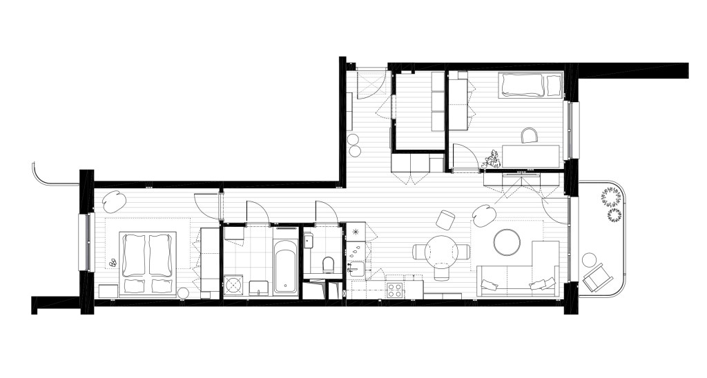
I ett nybyggnationsprojekt har vi designat en modern lägenhet med lyxig känsla. Vardagsrum och kök är i öppen planlösning och i hemmet finns två sovrum och ett badrum, allt i modern och ren stil.

Ekparketten matchar den ljusbeige inredningen så som det platsbyggda köket, panelen i hallen, garderoben i sovrummet och badrumsskåpen. Matplatsen har ett runt bord med stolar i annorlunda design och kontrastrika färger. I det stora skåpet i köket finns ett rymligt skafferi. Den lilla hallen får en utvidgad känsla genom en panelvägg som också gömmer dörrar till ett förråd. Platsbyggda garderober i de båda sovrummen har bra förvaringsmöjligheter med lådor bakom dörrarna samt öppna hyllplan för böcker och fina inredningsprylar. Lägenhetens badrum är helkaklat med keramiska plattor i 60×60-format. De stora spegelskåpen gör badrummet ljusare och optiskt större. Här finns även smart förvaring.
Här hittar ni förstudie med visualiseringar:















